Dane techniczne
- Wymiary: 924 x 850 x 600 mm
- Waga: 158 kg
- Wymiary przestrzeni paleniskowej: 190 x 130 mm
- Wymiary komory spalania:
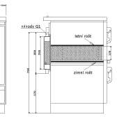
- Wymiary paleniska w wersji letniej: szerokość 200 mm, wysokość 220 mm, głębokość 380 mm.
- Wymiary paleniska w wersji zimowej: szerokość 200 mm, wysokość 360 mm, głębokość 380 mm.
- Wymiary piekarnika: 400 x 294 x 482 mm
- Średnica wyjścia spalin: 120 mm (z tyłu, z góry lub z boku)
- Palenisko: stal + szamot
- Ogrzewana kubatura: 60 – 150 m3
- Moc nominalna: 10 kW
- Moc oddawana do wody: 3,4 – 7 kW
- Moc oddawana do pomieszczenia: 5,5 kW
- Pojemność płaszcza wodnego: 10 L
- Ciśnienie robocze: układ otwarty
- Optymalna temperatura pracy: 70 – 75°C
- Średnica króćców wodnych: 1 cal
- Powietrze pierwotne: tak
- Powietrze wtórne: tak
- Wydajność: 85,2 %
- Średnie zużycie paliwa: 2 – 3 kg/h
Klasa energetyczna A+
Pozostałe dane techniczne
- Wysokość do środka krawędzi przewodu dymowego: 735 ± 5 mm
- Paliwo: węgiel kamienny, drewno, brykiet
- Pokrywa górna: brak w standardzie
- Wykonanie płyty grzewczej: stalowa z fajerką + stalowa nad piekarnikiem
- Minimalny ciąg: 12 Pa
Konfiguracje
- Wersja lewa (palenisko po prawej, piekarnik po lewej)
- Wersja prawa (palenisko po lewej, piekarnik po prawej)
Dostępne kolory
- Bordo
- Biały
- Antracyt
Palenisko letnie i zimowe
Kuchnia ma dwa ruszty: górny wyjmowany oraz dolny ruchomy. Po wyjęciu rusztu górnego komora spalania zwiększa objętość, co poprawia parametry grzewcze w sezonie zimowym.
Testy i jakość wykonania
- płaszcz wodny testowany pod ciśnieniem 6 bar przez minimum 6 godzin
- blacha kotłowa P265GH o grubości 4 mm
- instalacja musi pracować w układzie otwartym z naczyniem wzbiorczym
Najważniejsze cechy produktu
- duża moc i szeroki zakres pracy
- palenisko przestawiane na tryb letni i zimowy
- duży piekarnik z szybą i termometrem
- dolny ruszt ruchomy
- podłączenie spalin z tyłu, z boku lub z płyty
- płynna regulacja przepływu spalin i mocy
- obszerna szuflada na opał
- wersja lewa lub prawa
- możliwość współpracy z instalacją c.o. i c.w.u. (ok. 3 grzejniki + bojler 60 l)
- wydajność grzewcza 125 – 150 m3
Opis działania i budowy
Kuchnia TP 9103 to model przystosowany do gotowania, pieczenia i ogrzewania pomieszczeń zgodnie z normami EN12815:2004 i PN-EN13240:2002. Obsługuje węgiel kamienny i brunatny, drewno oraz brykiet. Zalecana długość polan wynosi 200–330 mm.
Płyta grzewcza ma powierzchnię 0,37 m2 i składa się z części do szybkiego gotowania oraz drugiej strefy o niższej temperaturze. Opcjonalnie kuchnia może być wyposażona w płytę szklano-ceramiczną.
Konstrukcja umożliwia podłączenie spalin z tyłu, z boku (w wersjach lewych/prawych) lub z płyty grzewczej. Przy płycie ceramicznej podłączenie od góry nie jest dostępne.
Rusztowanie
Dolny ruszt ruchomy umożliwia oczyszczanie paleniska bez otwierania komory. Górny ruszt pełni funkcję ograniczenia paleniska w sezonie letnim. Wyjęcie go zwiększa objętość komory zimą.
Wymiary paleniska
- Wersja letnia: 200 x 220 x 380 mm
- Wersja zimowa: 200 x 360 x 380 mm
Stałopalność
Kuchnia umożliwia pracę ciągłą dzięki regulacji powietrza i ustawieniu dźwigni w trybie pieczenia.
Czyszczenie
Model wyposażono w dostęp do kanałów spalinowych przez otwór pod piekarnikiem, co ułatwia usuwanie nagaru i zapewnia wysoką wydajność piekarnika.
Dolna szuflada mieści zapas opału, a przeszklony piekarnik z termometrem pozwala wygodnie kontrolować wypieki.
Uwaga! Przed zakupem, proszę bezwzględnie skontaktować się telefonicznie ze sklepem w sprawie dostępności wybranego wariantu urządzenia grzewczego, koloru i wersji podłączenia.
